Moderne Büro- und Praxisräumlichkeiten - lichtdurchflutetes Atrium

Stattegger Straße 179b, 8046 Stattegg

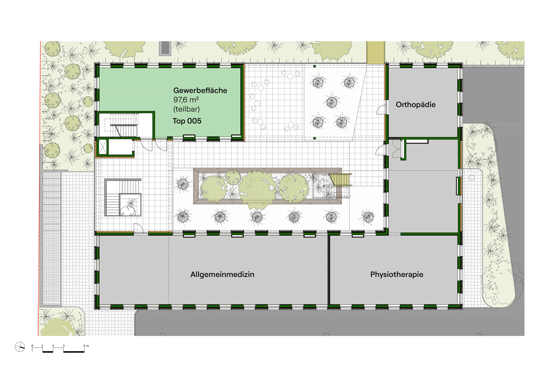
Mit Verfügbarkeit Frühjahr 2027 haben Sie die Möglichkeit, im “Büro und Gesundheitszentrum Stattegg” eine vielseitig nutzbare Gewerbefläche mit ca. 97 m² anmieten bzw. käuflich erwerben zu können. 

In den Obergeschossen gruppieren sich moderne Büro- und Praxisräume rund um ein lichtdurchflutetes Foyer, das Helligkeit und eine angenehme Arbeitsatmosphäre schafft. Im 1. Obergeschoss steht nur noch eine teilbare Gewerbefläche mit 97 m² zur Verfügung. 

Diese lässt sich flexibel anpassen und ist somit perfekt für kleine Teams, wachsende Unternehmen oder Praxisgemeinschaften.

Kaution: je nach individueller Ausgestaltung

Parkplätze und/oder Tiefgaragenplätze können angemietet bzw. käuflich erworben werden (Bitte beachten Sie den Folder im Downloadbereich)

Finanzierung

Eigentum oder Miete

Zimmeranzahl

1

Nutzfläche

97,6 m²

Immobilientyp

Gewerbe

Geschoss

1. Obergeschoss

Heizungsart

Fernwärme

Heizwärmebedarf

67.3 kWh/m²a

fGEE-Wert

0.67

Abstellplätze

Tiefgaragenplatz optional

Haus/Top

005 - 1. OG

Baujahr

2027

Bezug

Frühjahr 2027

Kosten Miete

Mietzins

1.318 €

angeführter Hauptmietzins mit VSt-Abzug: Miete exkl. Betriebs- und Heizkosten sowie sonstige Kosten (Strom und zzgl. 20% USt.)

Hauptmietzins ohne VSt-Abzug: Bitte beachten Sie den Folder im Downloadbereich

Kosten Eigentum

Kaufpreis

443.149 €

angeführter Kaufpreis: Anleger (zzgl. 20% USt.)

Kaufpreis für Endverbraucher: Bitte beachten Sie den Folder im Downloadbereich

Kontakt & Informationen

Ihre Kontaktperson

Jürgen Kallab

Downloads

Anfrage